Witaj w przestrzeni, gdzie natura spotyka się z zaplanowanym ładem. Mam na imię Katarzyna i jestem Architektem Krajobrazu z ponad 10-letnim doświadczeniem - zajmuje się projektowaniem i realizacją ogrodów, które zachwycają harmonią i funkcjonalnością. Jeśli marzysz o przestrzeni, która stanie się Twoim zielonym azylem, dobrze trafiłeś.

Tworzę z pasji i zaangażowania , aby uzyskać efekt wysokiej jakości i zadowolenia , za co cenią mnie klienci. Zajmuję się projektowaniem zarówno małych ogrodów przydomowych i tarasów, po rozległe tereny zielone i przestrzenie komercyjne — do każdego projektu podchodzę z troską i zamiłowaniem do detali. Wierzę w budowanie trwałych relacji z klientami. Poznaję ich preferencje i osobisty styl, aby jak najlepiej realizować ich wizje.









































































SIEDZIBA FIRMY MIEŚCI SIĘ W OKOLICACH POWIATUWARSZAWSKIEGO ZACHODNIEGO, NATOMIAST ZAKRES REALIZACJI TO WARSZAWA I OKOLICE
Odezwę się jak najszybciej.
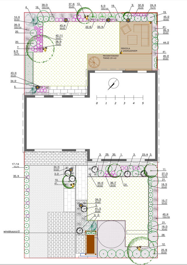
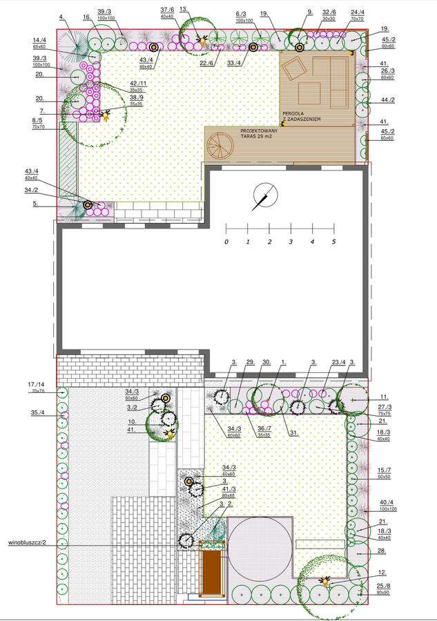
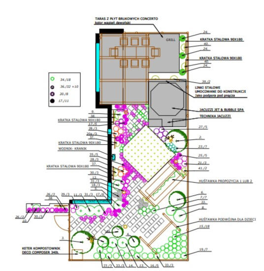
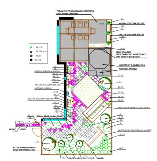
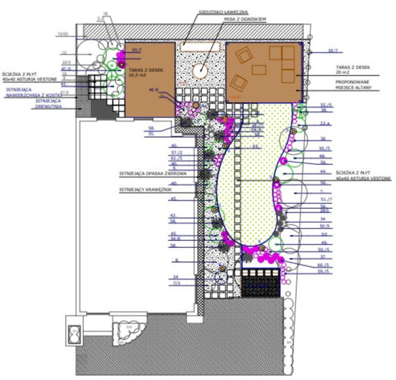
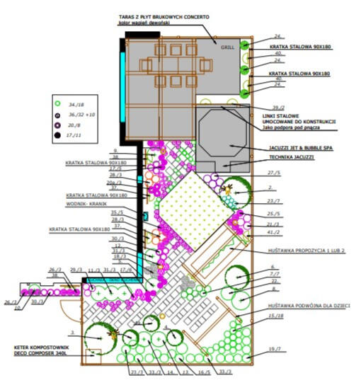
Tworzę unikalne i spersonalizowane projekty, które odzwierciedlają Twoje marzenia i potrzeby. Każdy mój projekt rozpoczyna się od szczegółowej konsultacji, podczas której poznaję Twoje oczekiwania, styl życia oraz wizję idealnego ogrodu. Słucham uważnie, aby zrozumieć, jakie elementy są dla Ciebie najważniejsze - czy to miejsce do relaksu, przestrzeń do zabaw dla dzieci, funkcjonalny ogród warzywny, czy może elegancka przestrzeń do przyjmowania gości.Następnie, wykorzystując moją wiedzę i doświadczenie, tworzę projekt, który harmonijnie łączy Twoje pomysły z nowoczesnymi trendami i najlepszymi praktykami ogrodniczymi. Dbam o każdy detal - od wyboru roślin, przez układ ścieżek i oświetlenia, aż po elementy małej architektury. Dzięki temu każdy ogród jest niepowtarzalny i w pełni odpowiada Twoim indywidualnym potrzebom oraz estetycznym preferencjom.Moje projekty to nie tylko piękne kompozycje roślinne, ale także funkcjonalne i przemyślane rozwiązania, które ułatwiają codzienne korzystanie z ogrodu. Dążę do tego, aby każdy ogród był miejscem, w którym z przyjemnością spędzasz czas, odpoczywasz i cieszysz się bliskością natury.Z moją pomocą Twój ogród stanie się prawdziwą oazą spokoju i piękna, która będzie odzwierciedlać Twoją osobowość i styl życia.


















































































